Sandy Jamison Managing Broker at Tuscana Properties
SOLD! MLS: ML81884154 $1,878,011
3.1 Bedrooms with 3 Baths1040 DARWIN TER 1
SUNNYVALE CA 94085MLS: ML81884154
Status: SOLD
Closed On: 2022-11-29
Sold Price: $1,878,011
Sold Price per SqFt: $913
Square Footage: 20563.1 Bedrooms
3 Baths
Year Built: 2022
Zip Code: 94085
Listing Remarks
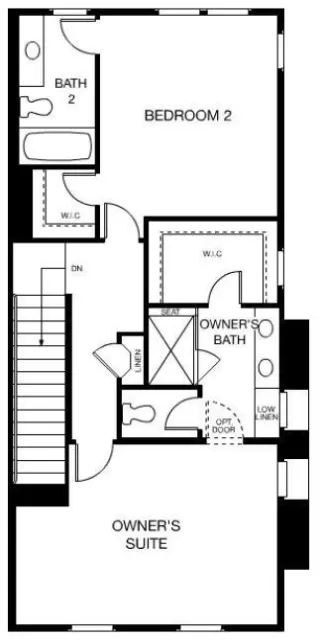
MLS#ML81884154 ~ Built by Taylor Morrison. Ready Aug/Sept! The Residence 3 at Ov8tion in Sunnyvale features 3 bedrooms, 3.5 baths, and over 2,000 sqft of luxury living space. Great end unit location facing community park! From the 2-car garage or inviting front porch, enter the grand foyer leading to the first-floor bedroom suite with private bath - ideal for extended family members, guests, or as a dedicated office. The second floor will welcome you with a gourmet kitchen, dining area, and a deck from the great room. On the third floor is the spacious owner's suite with an oversized walk-in closet and another secondary bedroom with its own private bath. The Ov8tion community features a multi-functional community building and a beautiful 6.5-acre public park. Designer select features include quartz countertops and upgraded cabinets and flooring.
Address: 1040 DARWIN TER 1 SUNNYVALE CA 94085
Listing Agent: VERONICA ROBERSON of TAYLOR MORRISON SERVICES INC 925-257-0599
Condo Mania Agent
Sandy Jamison
Tuscana Properties
Managing Broker
BRE 01847009
Request More Information
Listing Details
HOA FEES: $365 HOA FEES FREQUENCY: Monthly HOA FEE INCLUDES: Exterior Painting, Maintenance - Common Area, Maintenance - Exterior, Recreation Facility HOA AMENITIES: Recreation Room, Other SALES RESTRICTIONS: Other ADDITIONAL LISTING INFO: New Subdivision COMPLEX: Ov8tion VIEW: Park STYLE: Contemporary FULL BATHROOMS: 3 HALF BATHROOMS: 1 GARAGE PARKING: Attached Garage, Guest / Visitor Parking, Lighted Parking Area KITCHEN: Cooktop - Gas, Countertop - Quartz, Dishwasher, Exhaust Fan, Garbage Disposal, Microwave, Oven - Gas, Oven Range DINING ROOM: Dining Area in Living Room BEDROOMS: 3 FLOORING: Carpet, Laminate, Tile # UNITS IN BUILDING: 5 # UNITS IN COMPLEX: 107 UNIT FEATURES: End Unit, Tri Level Unit LISTING AGENT: VERONICA ROBERSON LISTING OFFICE: TAYLOR MORRISON SERVICES INC LISTING CONTACT: 925-257-0599
Property Location: 1040 DARWIN TER 1 SUNNYVALE CA 94085
This Listing
Active Listings Nearby
You Might Also Be Interested In...
The Fair Housing Act prohibits discrimination in housing based on color, race, religion, national origin, sex, familial status, or disability.
Listings on this website comes in part from the Internet Data Exchange program of the MLSListings (tm) MLS system. Real estate listings held by brokerage firms other than Tuscana Properties are marked with the IDX icon (a house inside a circle) and detailed information about them includes the names of the listing brokers and listing agents.
Copyright © 2026 MLSListings Inc. All rights reserved.
Information Deemed Reliable But Not Guaranteed. The information being provided is for consumer's personal, non-commercial use and may not be used for any purpose other than to identify prospective properties consumers may be interested in purchasing. This information, including square footage, while not guaranteed, has been acquired from sources believed to be reliable.
Last Updated: 2026-05-20
San Jose Condo Mania





