Sandy Jamison Managing Broker at Tuscana Properties
SOLD! MLS: ML82020124 $1,150,000
2.1 Bedrooms with 3 Baths17116 DEPOT ST
MORGAN HILL CA 95037MLS: ML82020124
Status: SOLD
Closed On: 2025-12-30
Sold Price: $1,150,000
Sold Price per SqFt: $522
Square Footage: 22022.1 Bedrooms
3 Baths
Year Built: 2024
Zip Code: 95037
Listing Remarks
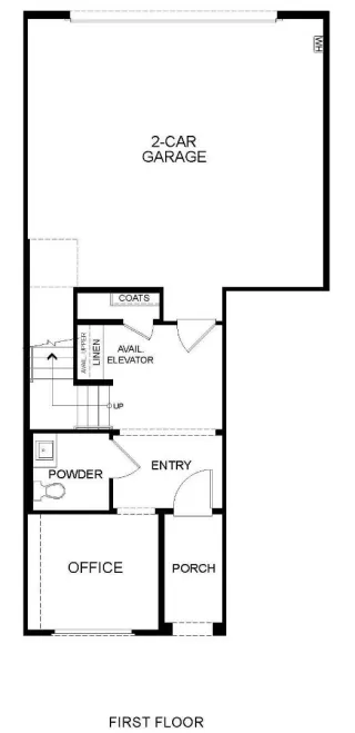
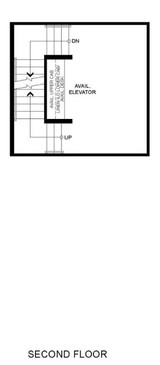
Discover modern elegance in this 3-bedroom, 2.5-bath home spanning 2,202 sq. ft. of thoughtfully designed space. Featuring striking Denim shaker cabinetry with a Lincoln White island, a custom tile backsplash, and premium KitchenAid stainless steel appliances, the kitchen is both stylish and functional. Enjoy the convenience of a private in-home elevator, a dedicated office for work or study, and upgraded finishes throughout - including custom flooring, designer lighting with dimmers, and a spa-inspired bath with a heavy glass shower door. Furnishings available at an additional price.
Address: 17116 DEPOT ST MORGAN HILL CA 95037
Listing Agent: MICHAEL VANDAELE of VAN DAELE DEVELOPMENT 951-354-2121
Condo Mania Agent
Sandy Jamison
Tuscana Properties
Managing Broker
BRE 01847009
Request More Information
Listing Details
HOA FEES: $351 HOA FEES FREQUENCY: Monthly HOA FEE INCLUDES: Exterior Painting, Insurance - Common Area, Landscaping / Gardening, Maintenance - Exterior, Maintenance - Road, Maintenance - Unit Yard, Roof HOA AMENITIES: BBQ Area SALES RESTRICTIONS: Age - No Restrictions, Pets - Allowed ADDITIONAL LISTING INFO: New Subdivision COMPLEX: Lumberyard VIEW: Hills, Mountains STYLE: Contemporary FULL BATHROOMS: 2 HALF BATHROOMS: 1 GARAGE PARKING: Attached Garage KITCHEN: Cooktop - Gas, Countertop - Quartz, Dishwasher, Island, Microwave, Oven Range - Built-In, Pantry, Refrigerator DINING ROOM: Eat in Kitchen BEDROOMS: 3 FLOORING: Vinyl / Linoleum # UNITS IN BUILDING: 8 # UNITS IN COMPLEX: 49 UNIT FEATURES: Other Unit Below, Tri Level Unit LISTING AGENT: MICHAEL VANDAELE LISTING OFFICE: VAN DAELE DEVELOPMENT LISTING CONTACT: 951-354-2121
Property Location: 17116 DEPOT ST MORGAN HILL CA 95037
This Listing
Active Listings Nearby
The Fair Housing Act prohibits discrimination in housing based on color, race, religion, national origin, sex, familial status, or disability.
Listings on this website comes in part from the Internet Data Exchange program of the MLSListings (tm) MLS system. Real estate listings held by brokerage firms other than Tuscana Properties are marked with the IDX icon (a house inside a circle) and detailed information about them includes the names of the listing brokers and listing agents.
Copyright © 2026 MLSListings Inc. All rights reserved.
Information Deemed Reliable But Not Guaranteed. The information being provided is for consumer's personal, non-commercial use and may not be used for any purpose other than to identify prospective properties consumers may be interested in purchasing. This information, including square footage, while not guaranteed, has been acquired from sources believed to be reliable.
Last Updated: 2026-03-08
San Jose Condo Mania






