Sandy Jamison Managing Broker at Tuscana Properties

MLS: ML82031130     $1,499,000     3.1 Beds /3 Baths

MLS #:ML82031130
Status:PENDING
List Price:$1,499,000
Price SQFT:$928
City: SUNNYVALE
Beds:3.1
Baths:3
SqFt:1615
Year:2006
Zip:94089

 

Listing Remarks

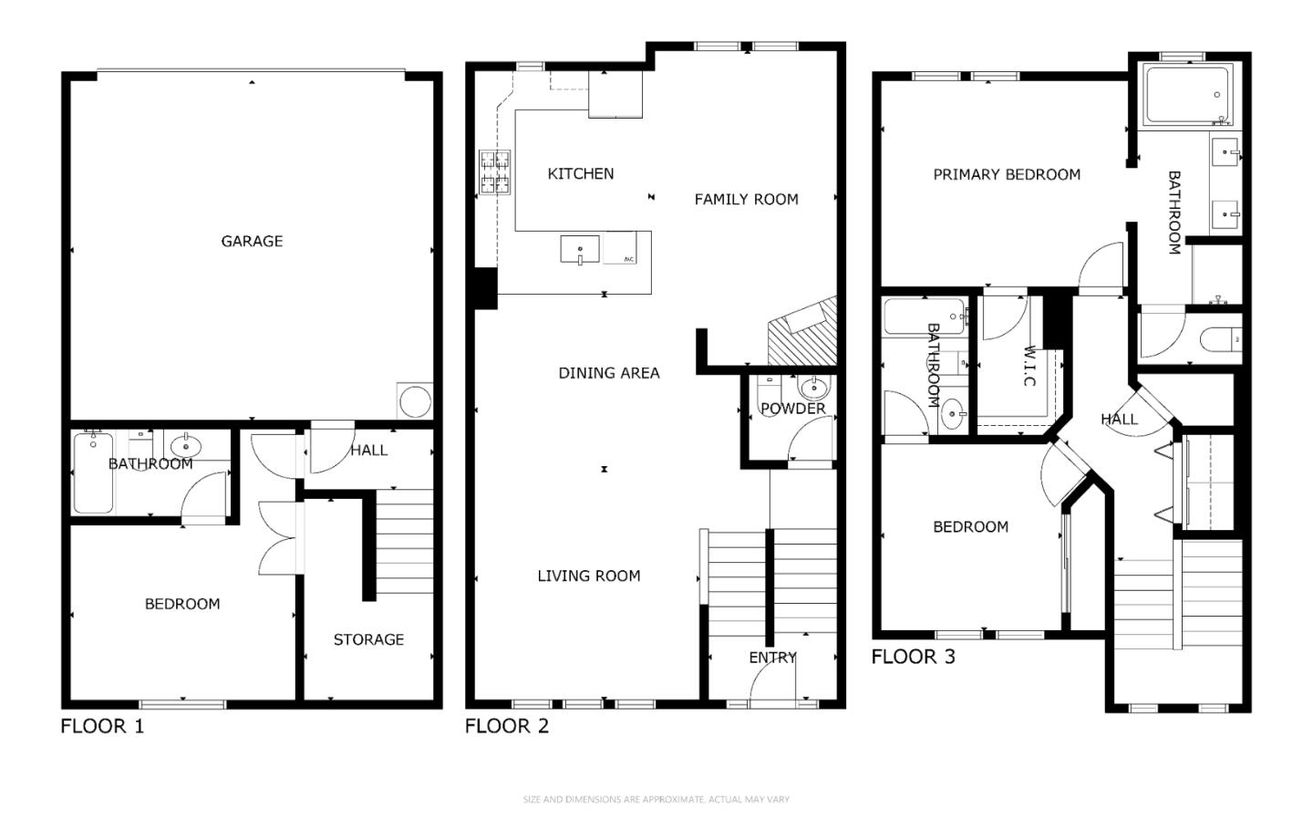
Luxurious Toll Brothers 3 Private Suite Townhome, with loads of custom Toll Brother upgrades throughout! This home is located in City Park, one of the most desirable communities in Tasman Crossing. One private suite w/en-suite bath located on lower level, great for in-laws or visitors! Recently remodeled Kitchen, hardwood floors, bathroom fixtures, lighting fixtures, built in speakers, warm coat of painted, smart enabled home and so much more! Easy access to major companies and freeways, and at the same time surrounded by soaring Redwood Trees providing a sense of seclusion. Open Living, Dining & Kitchen concept floor-plan and a separate Family Room off of fully upgraded Kitchen. New Gourmet Kitchen w/quartz counters, higher end backsplash tile, charming two tone cabinetry, SS appliances and powerful exhaust fan. Oversized Owners suite w/ custom WIC, upgraded en-suite bath w/dual sinks, shower and separate soaking tub! 3rd Jr Suite upstairs, w/large closet & en-suite bath. Laundry Room conveniently located on upper level. Community Club house. A short walk to Seven Seas Park, VTA, Grocery, Coffee & dining. Near major companies such as Google, Apple, Meta, Nvidia and Amazon. Also near the tech company bus pickup stations, making getting to work a breeze! Don't miss out!

Address: 520 SIRTE TER SUNNYVALE CA 94089

MLS Logo  Listing Agent: RABIA ALIZAI of COMPASS 408-393-7679

Listing Photos


Logo for Fair Housing ActThe Fair Housing Act prohibits discrimination in housing based on color, race, religion, national origin, sex, familial status, or disability.

Listings on this website comes in part from the Internet Data Exchange program of the MLSListings (tm) MLS system. Real estate listings held by brokerage firms other than Tuscana Properties are marked with the IDX icon (a house inside a circle) and detailed information about them includes the names of the listing brokers and listing agents.

MLSListings Logo Copyright © 2026 MLSListings Inc. All rights reserved.

Information Deemed Reliable But Not Guaranteed. The information being provided is for consumer's personal, non-commercial use and may not be used for any purpose other than to identify prospective properties consumers may be interested in purchasing. This information, including square footage, while not guaranteed, has been acquired from sources believed to be reliable.

Last Updated: 2026-03-06